Arquitectas que diseñan con el corazón y construyen con compromiso
Reformas, ampliaciones y proyectos que transforman tu espacio con acompañamiento real
QUIÉNES SOMOS
Arquitectas BA, Arquitectura con mirada humana
Desde Ituzaingó para toda Buenos Aires, creamos espacios que acompañan tu vida, tus ideas y tu manera de habitar.


Somos Florencia y Sol, arquitectas egresadas de la Universidad Nacional de Moreno.
Nos une la profesión y una forma de mirar los espacios como escenarios vivos, que acompañan historias, sueños y cambios.
Sumamos estudios en diseño de interiores y paisajismo, porque creemos que cada textura, rincón y vista transforma cómo se vive un lugar.
Trabajamos desde el diálogo: escuchar, imaginar y proyectar juntas/os. Cada obra es una historia compartida que cuidamos con claridad, respeto y compromiso.
NUESTROS SERVICIOS
Acompañamos tu Proyecto
Desde la idea hasta el último detalle
Reformas que transforman tu día a día
Nos encanta escuchar lo que soñás para tu hogar o espacio de trabajo. Convertimos esos deseos en ambientes que te representen y te hagan sentir bien
Ampliaciones pensadas para crecer con vos
Cuando el espacio queda chico, lo ampliamos con sentido. Diseñamos y construimos lugares que se integran naturalmente con tu estilo y tus necesidades
Diseño con mirada humana
Cada proyecto empieza con una charla. Buscamos entender cómo vivís y qué te gustaría mejorar, para crear soluciones que realmente sientas propias
Acompañamiento en cada paso
Te acompañamos desde el primer boceto hasta los últimos detalles, con comunicación clara y presencia constante
Reparaciones que devuelven la calma
Si algo dejó de funcionar, lo resolvemos con rapidez y cuidado. Tu tranquilidad también es parte de nuestro trabajo
Proyecto y dirección de obra con compromiso real
Coordinamos equipos, resolvemos imprevistos y te mantenemos siempre al tanto para que sientas tu proyecto en buenas manos
Ideas
Nuestro objetivo es convertir tus ideas en realidad. Confiá y dejá en nuestras manos todo el proceso.
Diseño
El proceso de diseño se adecúa a cada cliente. Ya que nuestro trabajo es 100% personalizado.
Exactitud
Somos profesionales que optimizamos los resultados de cada proyecto adaptándonos a tus ideas.
Satisfacción
Tu opinión es importante en todo el proceso. Desde la primera línea trazada, hasta el producto final.
NUESTRAS OBRAS
Antes y Después
OBRA NUEVA
Etapas de Proyecto
El camino antes de construir
- Primer encuentro
Nos sentamos a charlar para conocer tu idea, tus deseos y tus dudas. - Relevamiento del espacio
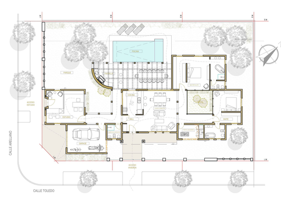
Visitamos el lugar, tomamos medidas y analizamos cómo se vive. - Propuesta de diseño
Te presentamos planos e ideas abiertas a ajustes. El proyecto es tuyo. - Presupuesto claro y detallado
Transparente, sin sorpresas. Materiales, mano de obra y tiempos estimados. - Documentación técnica y permisos
Nos ocupamos de todo lo necesario para que la obra esté en regla. - Planificación de obra
Coordinamos equipos y tiempos. Comunicación abierta en todo momento.

























